工作
信息
轨道
工作
信息
轨道
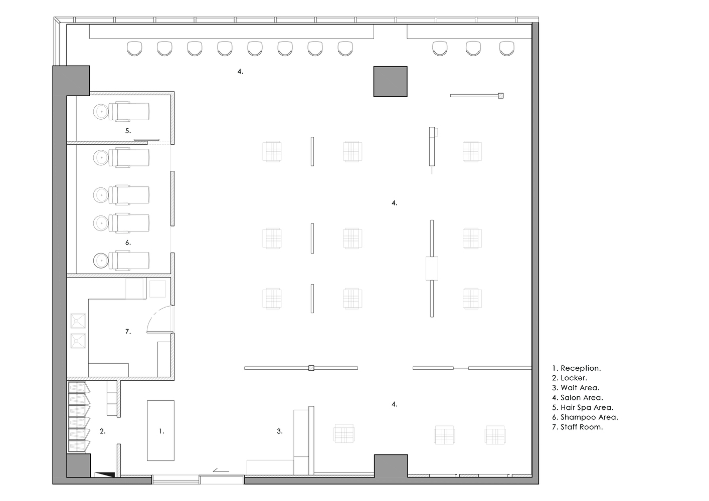
LE'EVO
美发店
No items found.
No items found.
No items found.
No items found.
No items found.
No items found.
No items found.
下一个
下一个
Oxo Living - The Pavillions
下一个
Arizona House
SOYO Hannam
Orikum
Dhermi Hotel
Wuhan Great River Center
Norrøna Lodge Senja
Albanian Adventure
Dukagjini + Shëngjin
Villa P
Manx Meyers Beach House
Fryseriet Nyksund
SETOUCHI
Adventure Island
Ink Grade Winery
Varden
Circular Farm Building
The Nunavut Inuit Heritage Centre
Icefjord Center
Irori
Quinta de Santo António Duoro Winery
Levens College
Nodeul Island
The Whale
Panorama Hilltop
Fedje Hotel
Goa Residence
Ishigaki House
Mexico Surf House
Villa Lisö
Munich Concert Hall
Vikingeskibsmuseet Roskilde
Korce Stadium
Suseongmot Lake Floating Stage
Shanghai Opera